Apartmani The Bridge Casa
- Klijent
- Željko Školjarev
- Godina
- 2018
- Lokacija
- Zadar
- Površina
- 130 m2
- Status
- Izvedeno
O projektu
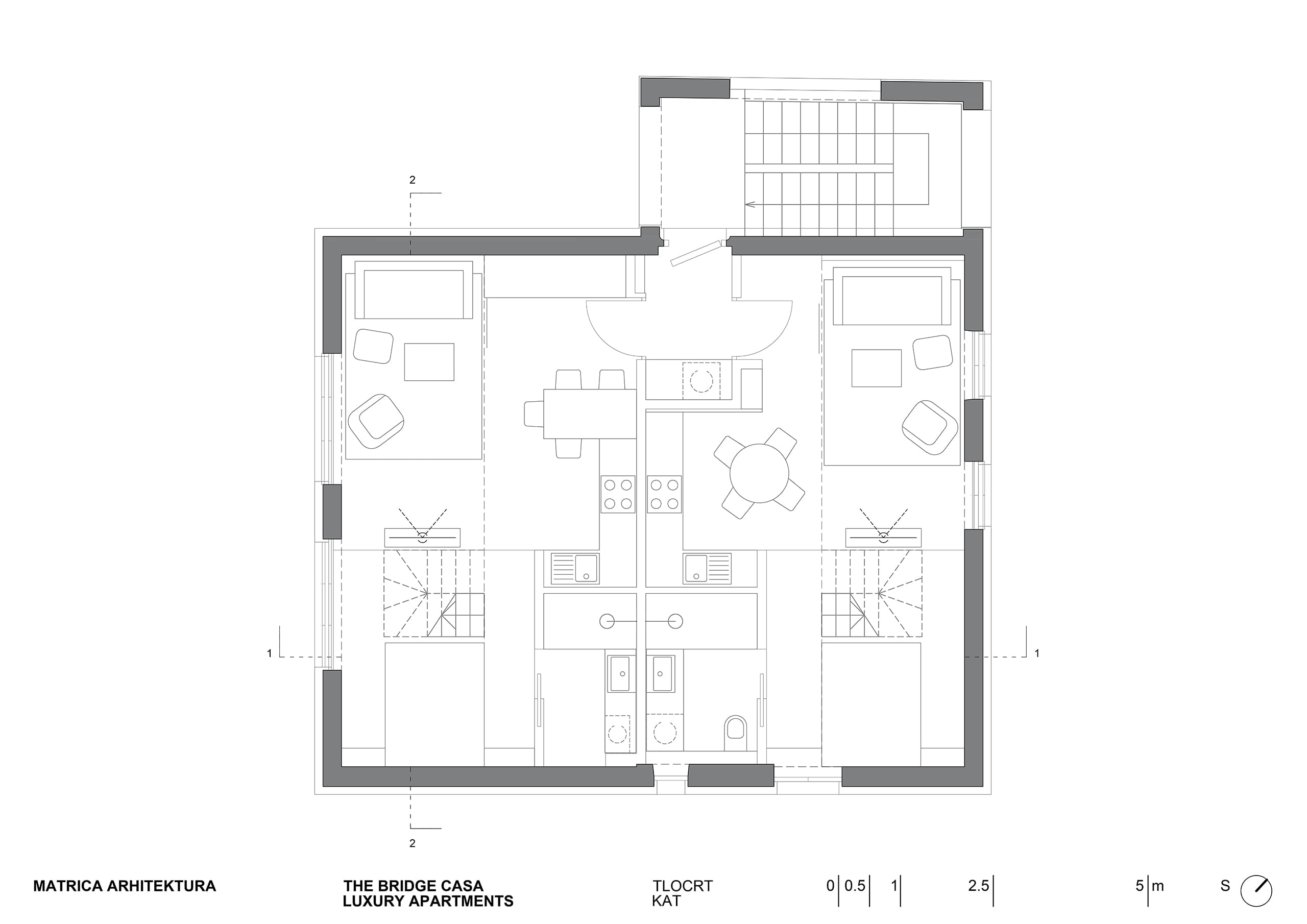
Obiteljska kuća iz sredine prošlog stoljeća konstruktivno je ojačana i prenamijenjena iz jednoobiteljske kuće u dva zasebna dvoetažna apartmana s moderno uređenim interijerom. Vlasnik prostora imao je prethodna dobra iskustva u suradnji s Matricom pa nam je u potpunosti prepustio odluku o novoj organizaciji prostora, uz uvjet da postignemo dvije komforne prostorne cjeline.
- Vrsta posla
- Rekonstrukcija, Interijer, Uređenje okoliša
- Faze posla
- Arhitektonski snimak postojećeg stanja, Glavni arhitektonski projekt, Idejni i izvedbeni projekt interijera, Idejni projekt uređenja okoliša




Odluka da se postojeća kuća podijeli po vertikali umjesto po katovima donesena je zbog želje da se sačuva pitoreskno vanjsko stubište i da oba nova dijela postanu jednakovrijedni u prostornom smislu. Organizacija prostora na dvije etaže omogućila je uvođenje zanimljivih unutarnjih stepenica koji uvelike određuju karakter prostora.
