Apartmani The Bridge Luxury
- Klijent
- Željko Školjarev
- Godina
- 2013
- Lokacija
- Zadar
- Površina
- 80 m2
- Status
- Izvedeno
O projektu
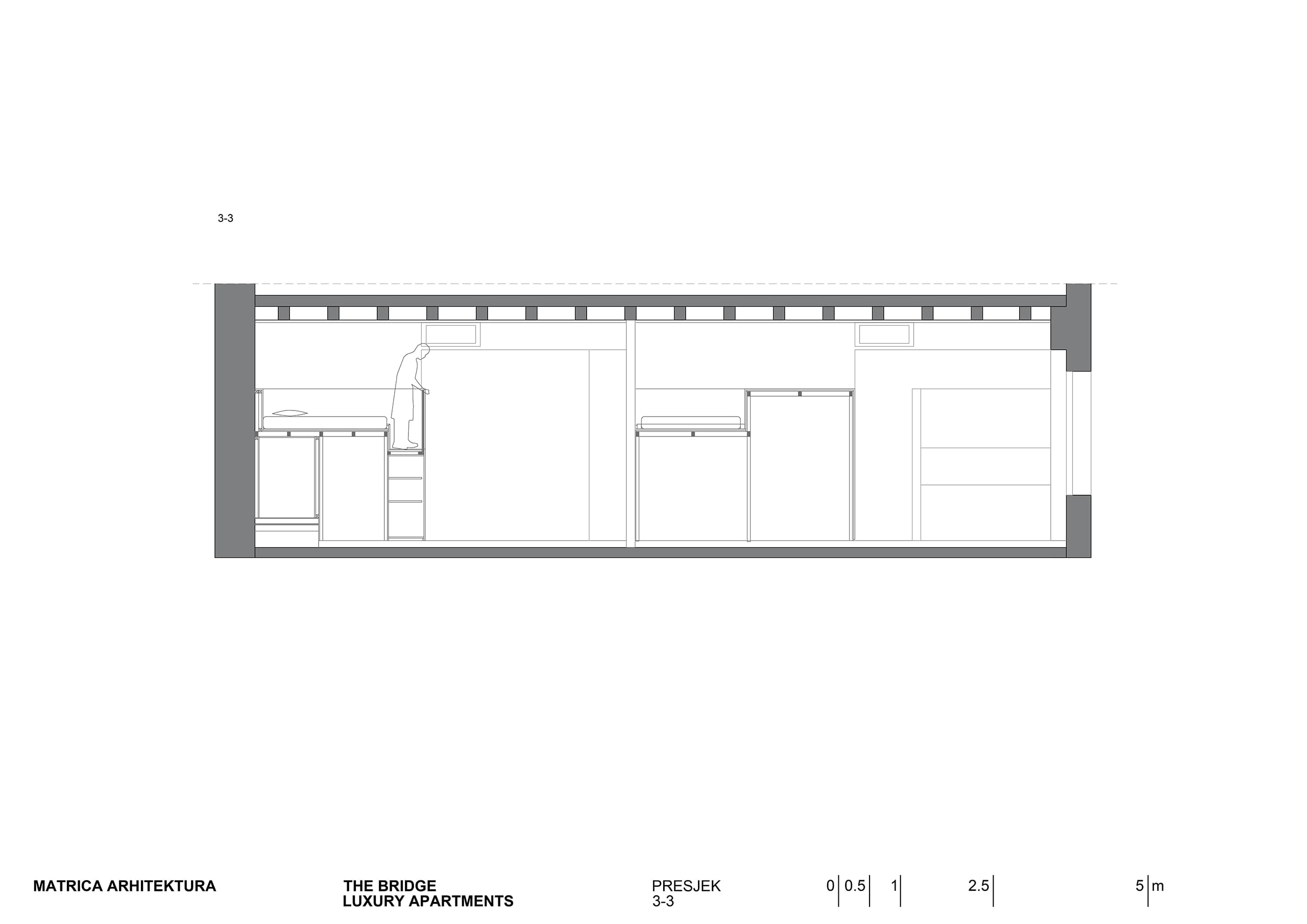
Jedan naslijeđeni stan od bake trebao se pretvoriti u dva komforna apartmana sa zajedničkim ulaznim prostorom. Iskorišteni su visoki stropovi da bi se postigla dvoetažnost pa su kupaonice projektirane kao kutije na čijoj se gornjoj strani nalaze ležajevi. Također je djelomično iskorišten i kameni zid kuće koji mjestimično postaje dio interijera.
- Vrsta posla
- Interijer
- Faze posla
- Idejni projekt interijera, Izvedbeni projekt interijera




Posebnost interijera je kada s pogledom na zadarski poluotok, neobičan komad namještaja, ali čudnovato dobro uklopljen u cijelu priču.
