Kuća za odmor Jadrtovac
- Klijent
- Neven Horvat
- Godina
- 2024
- Lokacija
- Jadrtovac
- Površina
- 185 m2
- Status
- U izvedbi
O projektu
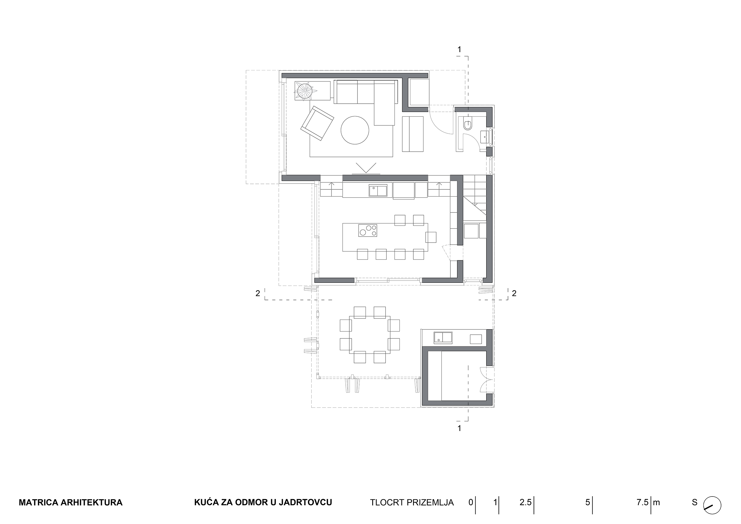
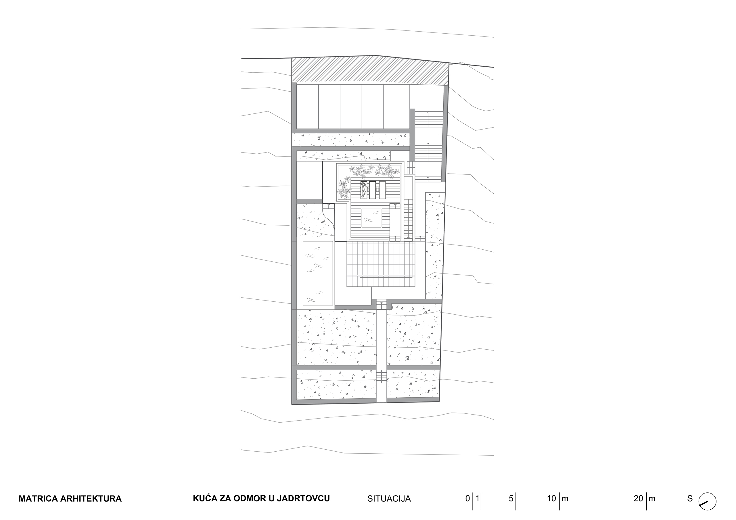
Kuća za odmor u mirnoj uvali Jadrtovca prilagođava se padu terena tako da se iz svakog dijela prizemlja izlazi na terase koje su u razini terena. Osim izmicanja po visini volumen se izmiče i tlocrtno, tako da se svaka prostorna cjelina kuće otvara prema moru a štiti od sunca, što je poželjna karakteristika za kuću koja služi uglavnom za ljetni odmor.
- Vrsta posla
- Nova građevina, Uređenje okoliša
- Faze posla
- Idejni projekt, Glavni projekt




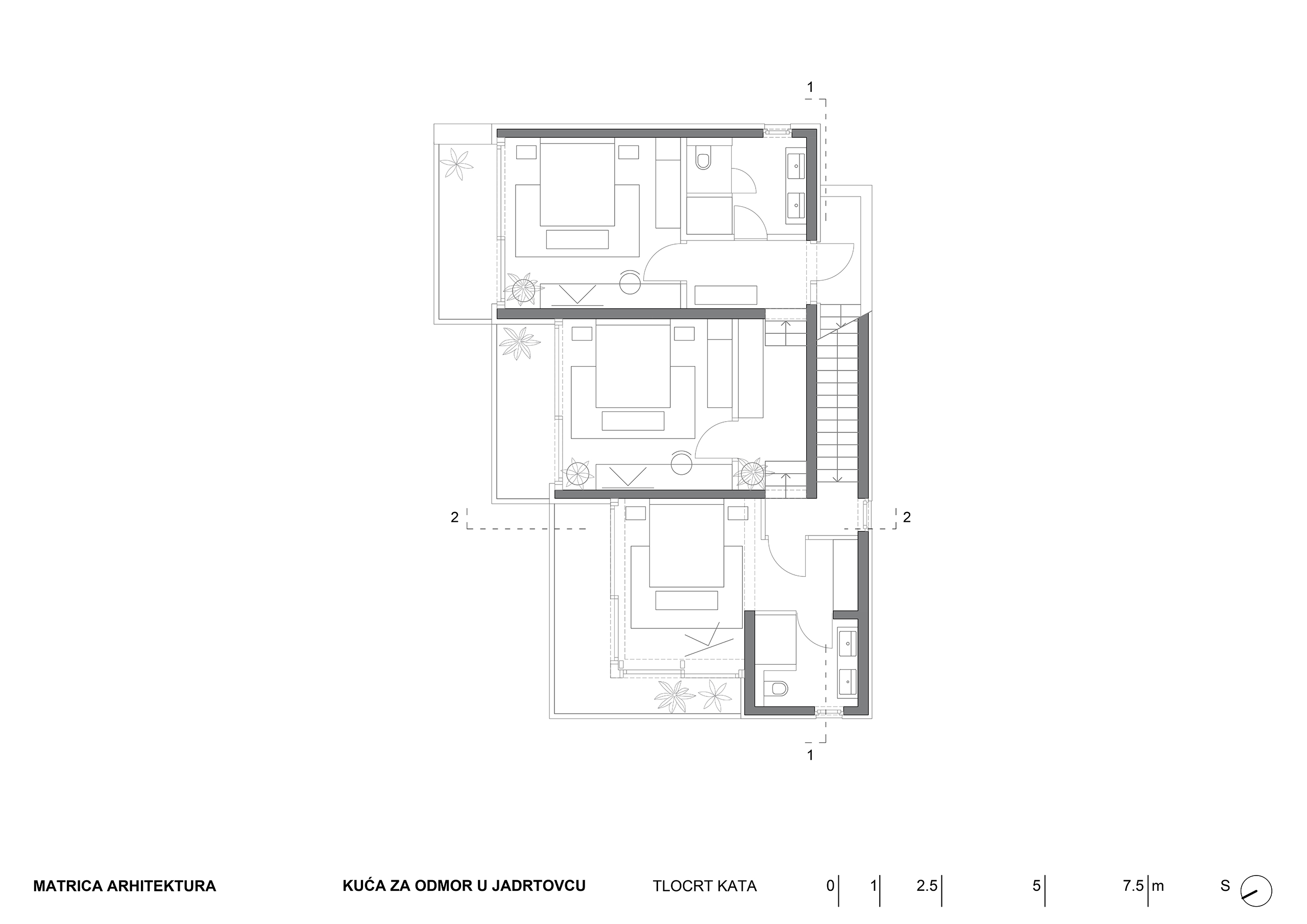
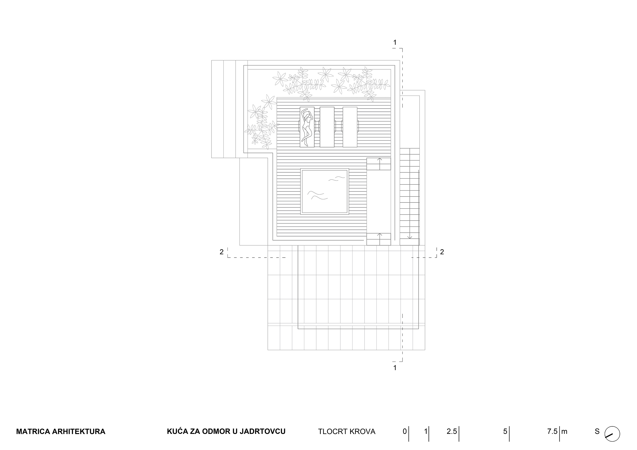
Kuća se sastoji od tri prostrane sobe s kupaonicama i integriranim prostorom za rad, dnevnih prostorija te više otvorenih prostora koji su različitih karakteristika i orijentacija, između kojih se nalazi i sunčalište sa zelenim krovom i masažnom kadom na krovu. Zbog pada terena prema ulici kuća je skromnih dimenzija i gotovo bez otvora, a raste, rastvara se volumenom, otvorima i vanjskim prostorima prema vlastitom vrtu.

Izvrsna arhitektonska rješenja i vrhunska profesionalnost obilježili su našu suradnju. Arhitekti su uspjeli postići savršen balans između modernih linija i specifičnosti mikrolokacije na hrvatskoj obali, poštujući samu poziciju objekta. Prostor je inteligentno iskorišten, a proces projektiranja bio je iznimno brz i transparentan. Posebno bih istaknuo njihovu odličnu komunikaciju i objektivan pristup mojim zahtjevima, što mi je kao klijentu pružilo potpuni osjećaj sigurnosti. Dobili smo kuću koja je točno ono što smo željeli za svoj ljetni odmor!
Neven Horvat