Kuća za odmor Mrkopalj
- Klijent
- Marko Pavić
- Godina
- 2023
- Lokacija
- Jadrtovac
- Površina
- 250 m2
- Status
- U izvedbi
O projektu
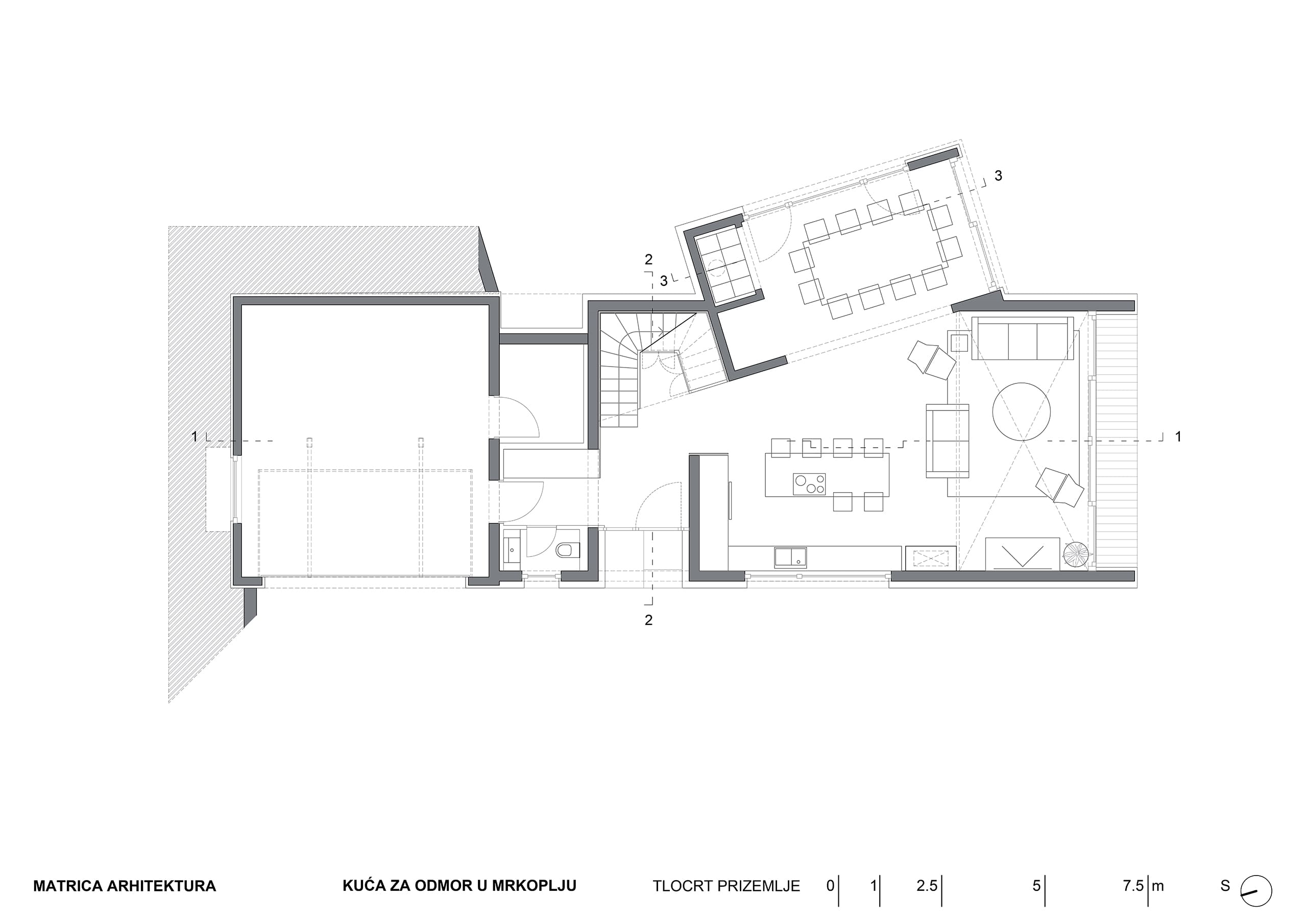
Kuća u Mrkoplju nalazi se na križanju dvije ulice koje nisu pod pravim kutem i njen tlocrt slijedi smjerove obje ulice, i tako se usklađuje s nizom već postojećih susjednih kuća i kuća s druge strane ulice. Svojim strmim krovom kuća ponavlja tradicijske graditeljske obrasce iz neposredne okoline ali oni su interpretirani u suvremenom izričaju.
- Vrsta posla
- Nova građevina, Uređenje okoliša
- Faze posla
- Idejni projekt, Glavni projekt





U prizemlju se zid oblaže kamenom, dok je krov od falcanog lima, koji svojom pojavnošću asocira na tradicionalni način oblaganja krova limenim pločama. Na kontaktu s vanjskim prostorima koristi se drvo, kao logičan materijal za kontakt s prirodom koja se iz uređenog dvorišta pretače u visoku borovu šumu.
