Ljetnikovac Hütterott Rovinj
- Klijent
- Maistra d.d.
- Godina
- 2019
- Lokacija
- Rovinj
- Površina
- 2940 m2
- Status
- U izvedbi
O projektu
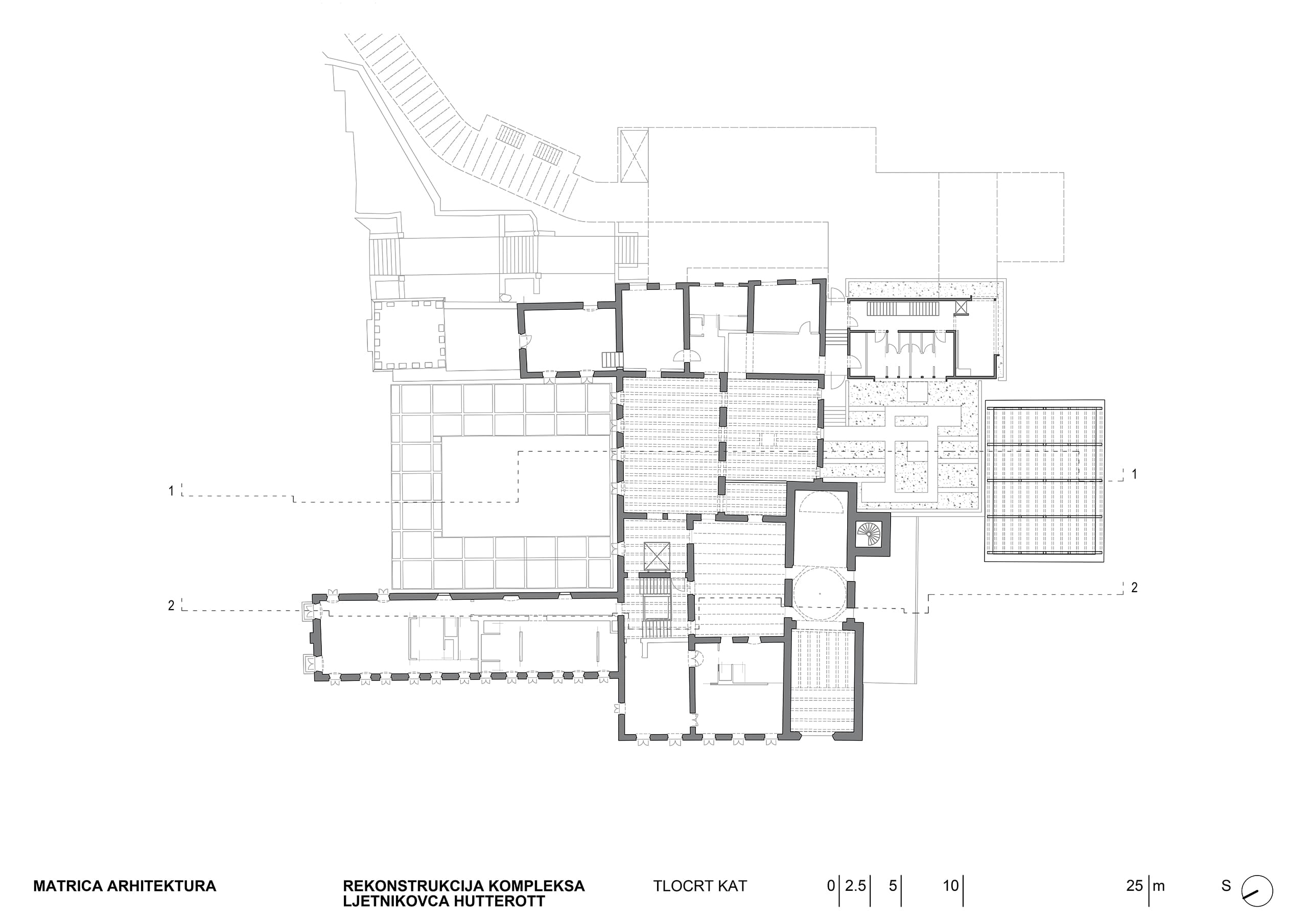
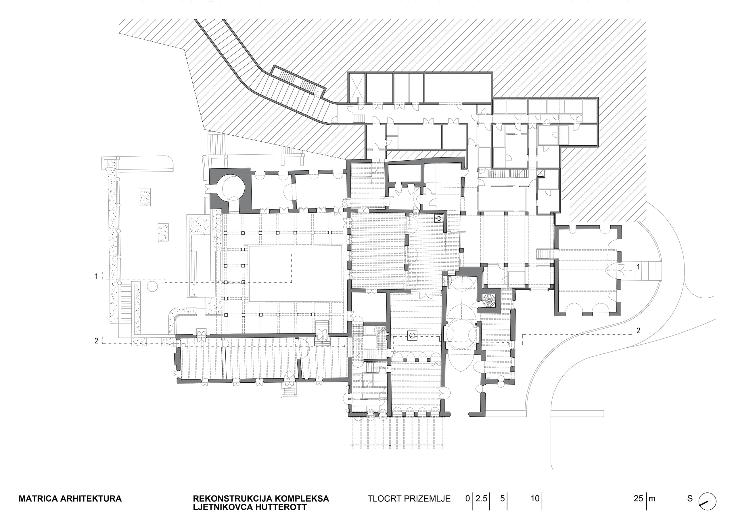
Sklop Hütterott se nalazi na listi kulturnih dobara RH i sastoji se od ljetnikovca, crkve Sv. Andrije te pripadajućeg povijesnog vrta. Crkva datira iz ranog srednjeg vijeka a obitelj Hütterott preuređuje ljetnikovac krajem 19.stoljeća. Planirana je rekonstrukcija i konstruktivna sanacija cijelog sklopa uz prenamjenu većeg dijela prostora u izložbeni prostor.
- Vrsta posla
- Rekonstrukcija i dogradnja, Interijer, Uređenje okoliša
- Faze posla
- Idejni projekt, Glavni projekt





Nekvalitetne nadogradnje iz 20. st. mijenjaju se novim funkcionalnijim dogradnjama jednostavnih linija koje će se bolje uklopiti u stari kompleks. Teške drvene nadstrešnice u atriju mijenjaju se laganim i svijetlim bio klimatskim pergolama.
