Palača Lešić Dimitri
- Klijent
- Lešić Dimitri d.o.o.
- Godina
- 2008
- Lokacija
- Korčula
- Površina
- 1035 m2
- Status
- Izvedeno
O projektu
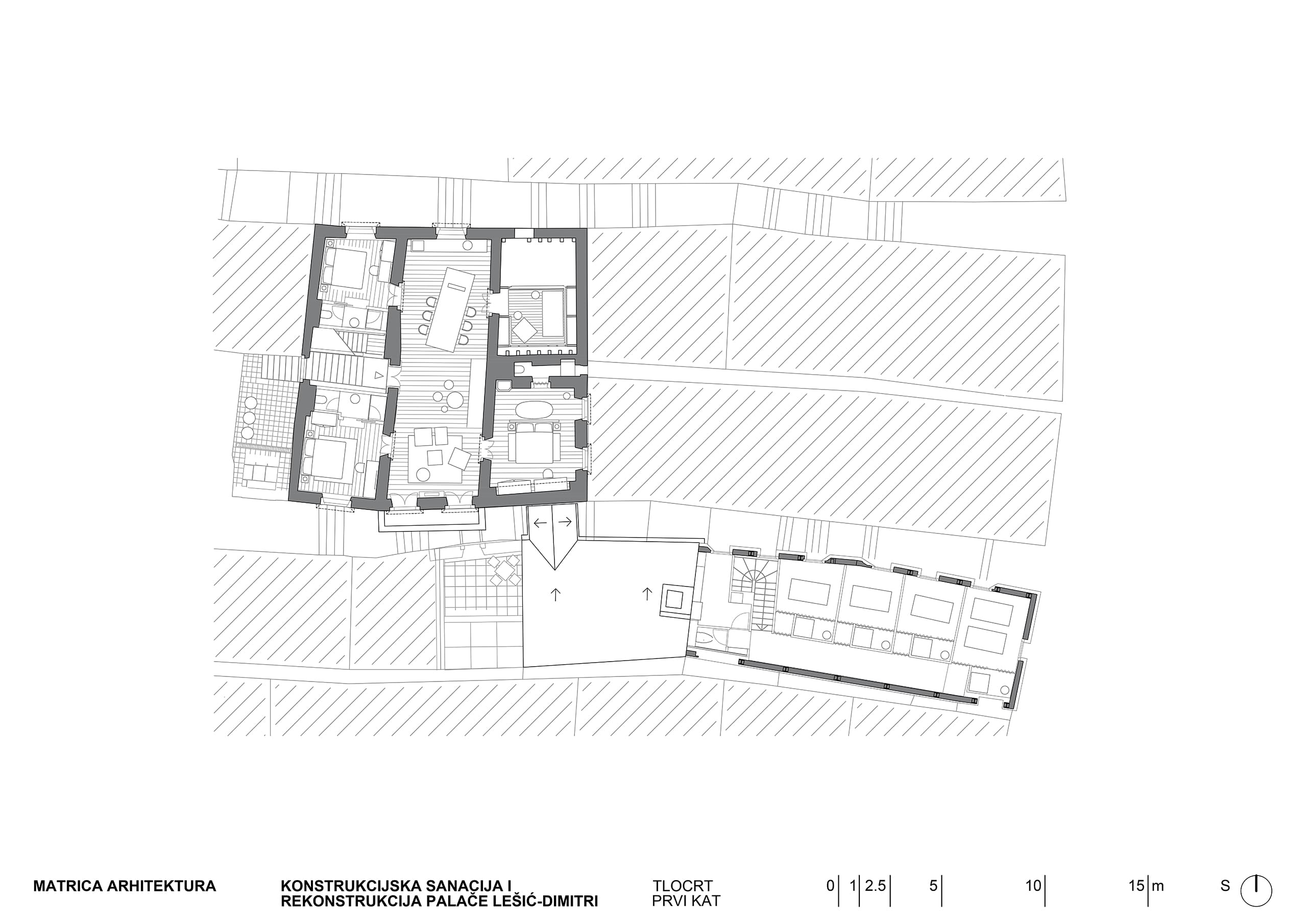
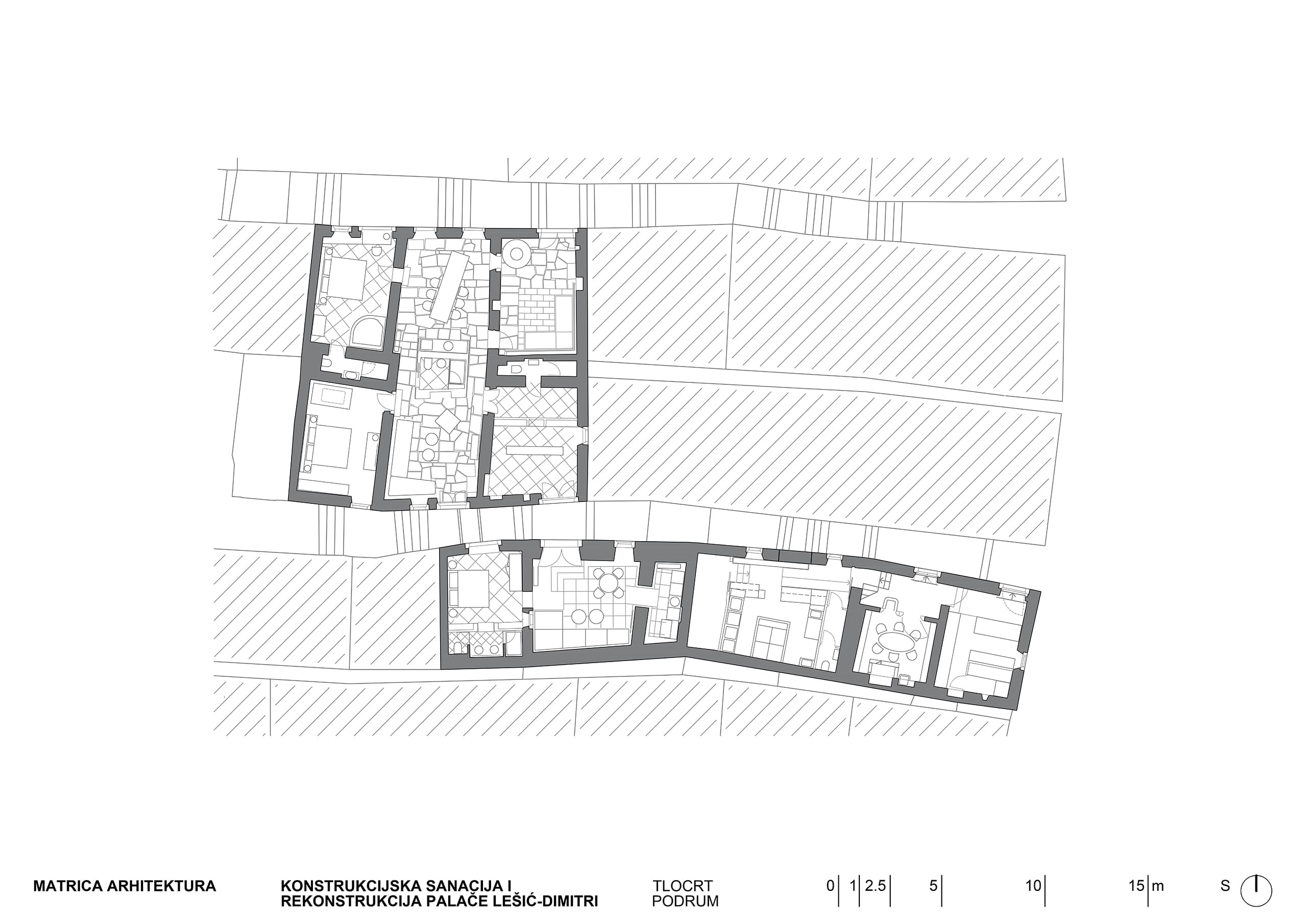
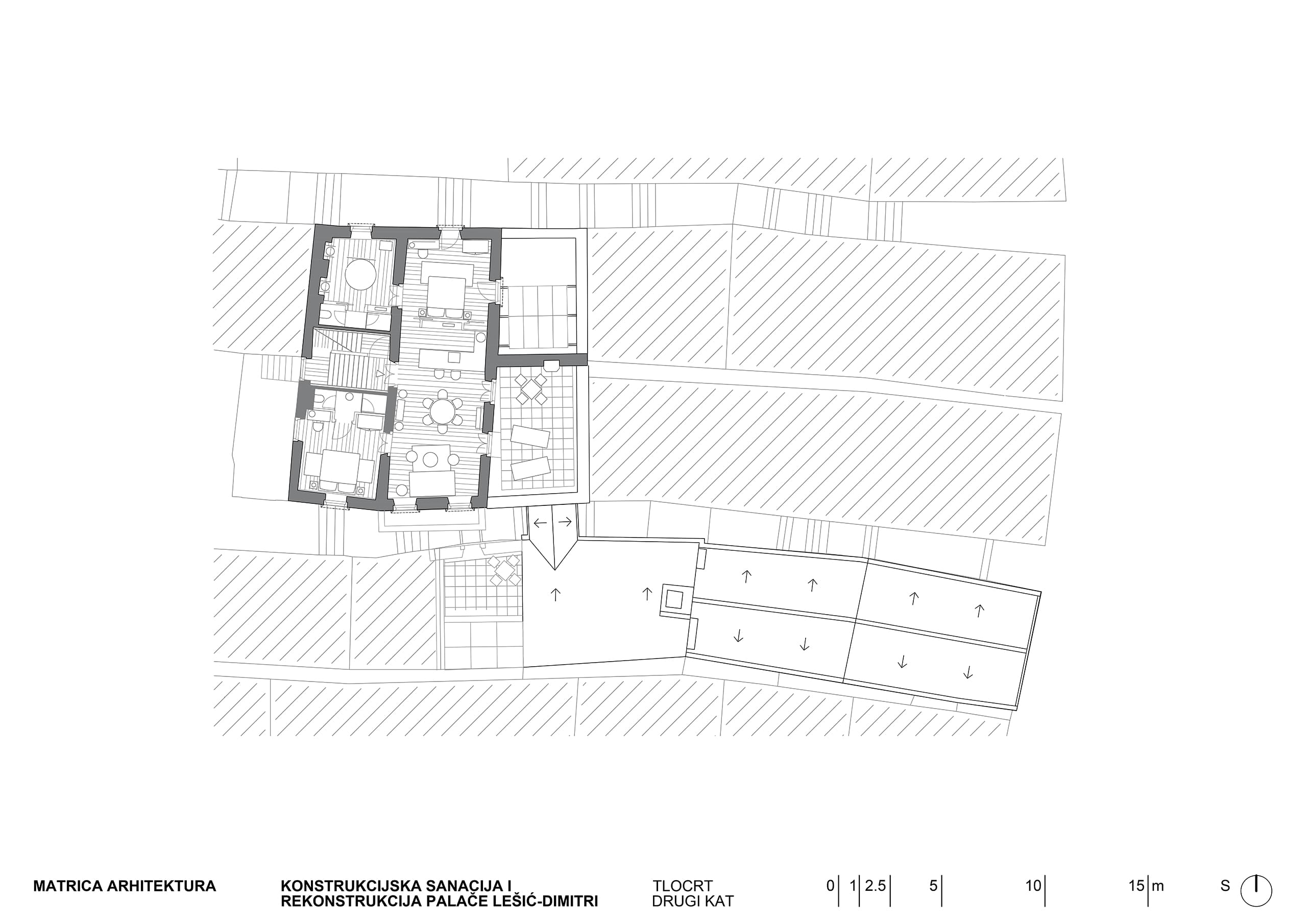
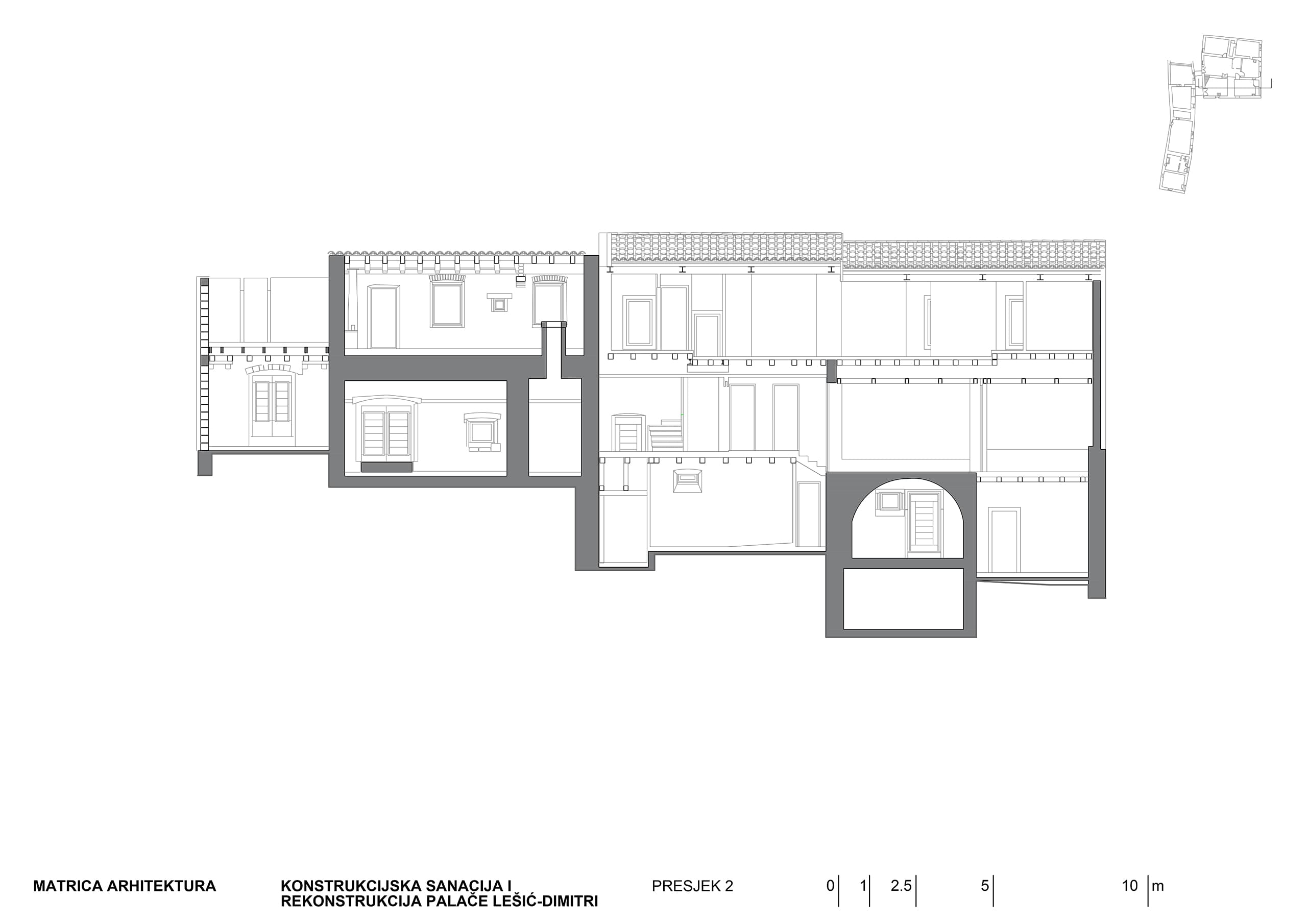
Zapuštena srednjovjekovna palača u starom gradu Korčuli potpuno se rekonstruira te prenamjenjuje u luksuzni boutique hotel. Postojeći kameni konstruktivni dijelovi i kamena plastika zadržavaju se i prezentiraju, dok se nekvalitetne recentne dogradnje nadomještaju suvremenim elementima nenametljivog no suvremenog izraza, u skladu s postojećim elementima.
- Vrsta posla
- Konstrukcijska sanacija, Rekonstrukcija, Dogradnja, Interijer
- Faze posla
- Arhitektonski snimak postojećeg stanja, Idejni projekt, Glavni projekt, Izvedbeni projekt, Koordinacija projekta unutarnjeg uređenja, Konzalting, Projektni nadzor






Novi sadržaj zahtijeva veliki komfor koji podržava mnogo interpolirane infrastrukture, što nije u skladu s postojećim objektom, te se uvodi u objekt na različite komplicirane, nestandardne načine.

Svojom profinjenošću i elegancijom Palača Lešić Dimitri upotpunjuje bogatu povijest i kulturnu baštinu otoka. Pet godina radilo se na restauraciji nekadašnje biskupske palače iz 18. stoljeća kako bi postala raskošan boutique hotel koji svakom gostu pruža vrhunsko iskustvo i svu udobnost za opuštajući odmor.
Journal.hr