Stambena zgrada Karlovac
- Klijent
- Ministarstvo za javne radove, obnovu i graditeljstvo
- Godina
- 2021
- Lokacija
- Karlovac
- Površina
- 3030 m2
- Status
- Izvedeno
O projektu
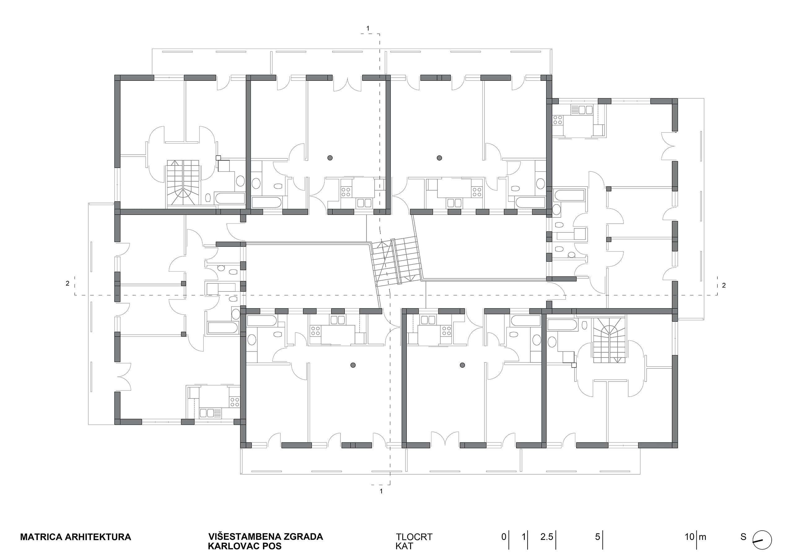
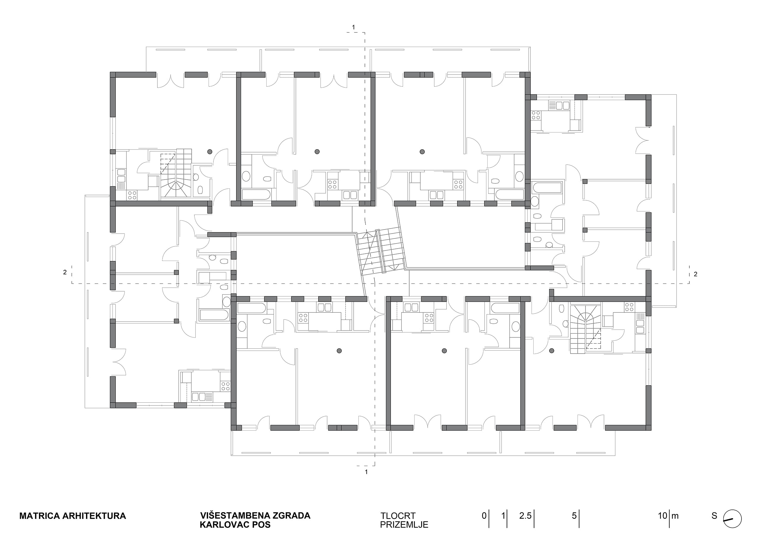
Građevina ima tlocrt koji je kombinacija dva međusobno pomaknuta L oblika, međusobno povezana glavnim stubištem, na način da se u svaki dio ulazi sa polukata. To je omogućilo maksimalnu iskoristivost u odnosu na dozvoljeni broj kvadrata na parceli. Stubište je otvoreno, pa se u stanove ulazi iz atrija, što omogućava prirodnu ventilaciju gospodarskih dijelova stanova.
- Vrsta posla
- Nova građevina
- Faze posla
- Idejni projekt, Glavni projekt, Izvedbeni projekt, Projektni nadzor





Svojim dnevnim prostorima kuća se u potpunosti otvara prema okolini, ali preko kontinuiranih loggia/balkona, koje ujedno osiguravaju dovoljno intimnosti zatvorenim dijelovima stana.
