Stambeno poslovna zgrada H57
- Klijent
- PL GRUPA d.o.o.
- Godina
- 2016
- Lokacija
- Zagreb
- Površina
- 8875 m2
- Status
- U izvedbi
O projektu
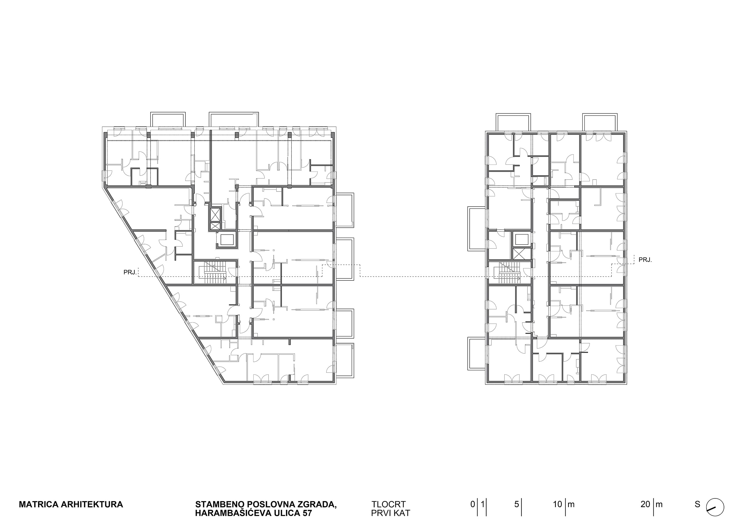
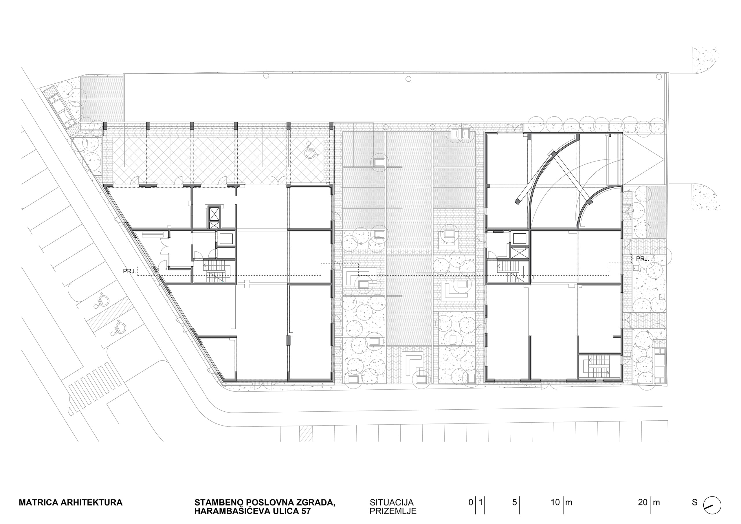
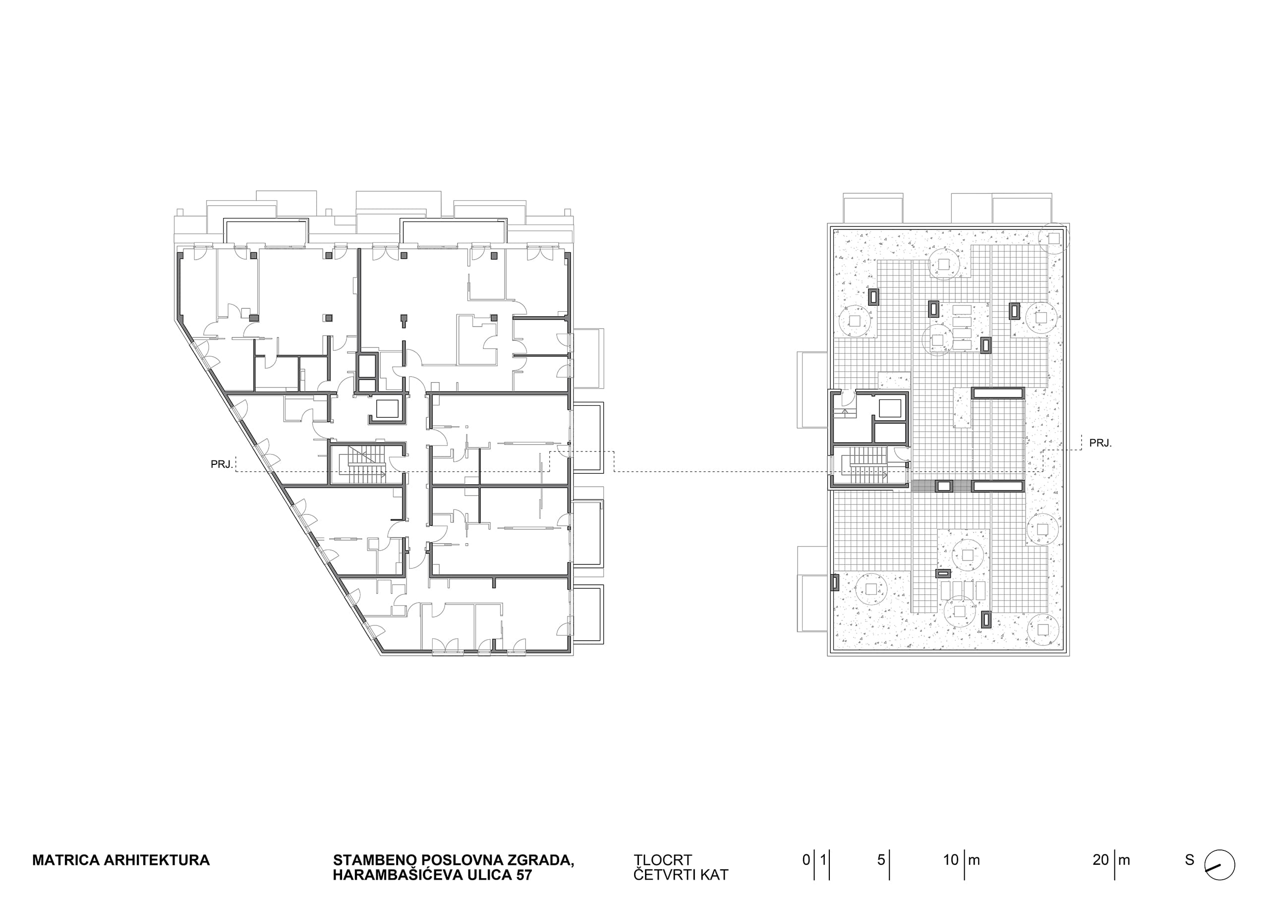
Već izvedena građevina u roh-bau fazi rekonstruirana je na način da su stanovi dobili više vanjskih prostora, da su povećani vanjski otvori te da su stanovi organizirani najbolje što je moguće s obzirom na veliku dubinu postojeće građevine.
- Vrsta posla
- Rekonstrukcija
- Faze posla
- Arhitektonski snimak postojećeg stanja, Idejni projekt, Glavni projekt, Izvedbeni projekt, Projektni nadzor




Prostor između dvije zgrade, a iznad garaže, organizira se kao zeleni krov s ekstenzivnim zelenilom. Loggie su prostrane i obložene drvenom oblogom, a krov niže zgrade uređuje se kao zajednički vrt.
