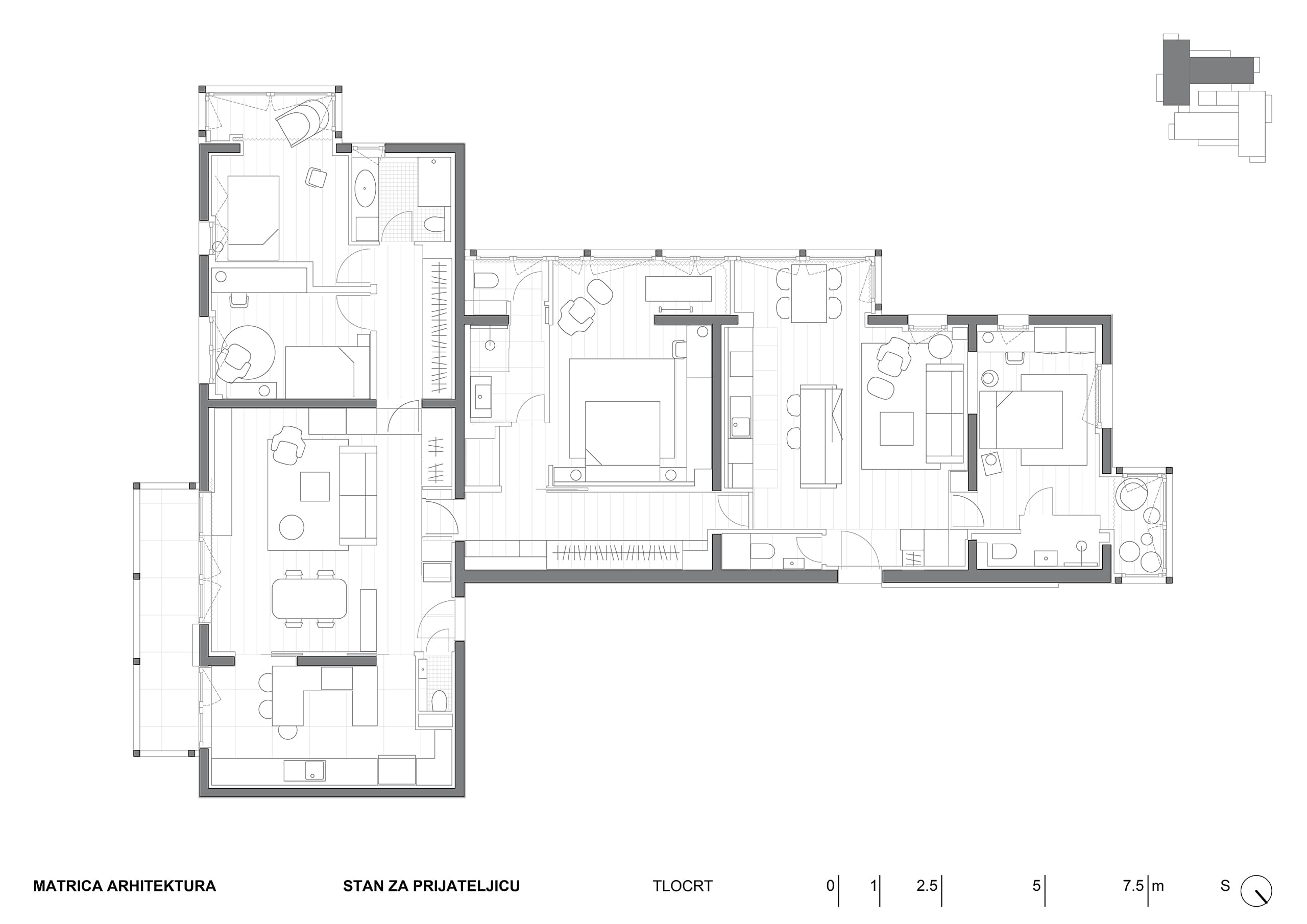
Stan za prijateljicu
- Klijent
- Privatna naručiteljica
- Godina
- 2019
- Lokacija
- Zagreb
- Površina
- 190 m2
- Status
- Izvedeno
O projektu
Dva stana spajaju se u jedan na način da čine cjelinu ali da u slučaju potrebe mogu funkcionirati odvojeno. Stanom dominira svijetli europski hrast, te različite boje po izboru vlasnice, koje su uglavnom u stan uvedene na način da svaka pojedina prostorija uz osnovnu toplu bijelu na zidovima te boju i teksturu hrasta ima prisutnu i jednu jaku i veselu boju.
- Vrsta posla
- Interijer
- Faze posla
- Arhitektonski snimak postojećeg stanja, Idejni projekt interijera, Izvedbeni projekt interijera, Projektni nadzor




Sav ugrađeni namještaj i unutarnja stolarija projektirani su po mjeri, dok su svi slobodnostojeći komadi namještaja iz tvrtke Prostoria prema izboru vlasnice.
