Stanovi Harambašićeva
- Klijent
- PL GRUPA d.o.o.
- Godina
- 2016
- Lokacija
- Zagreb
- Površina
- 33/46/94 m2
- Status
- Idejni projekt / natječaj
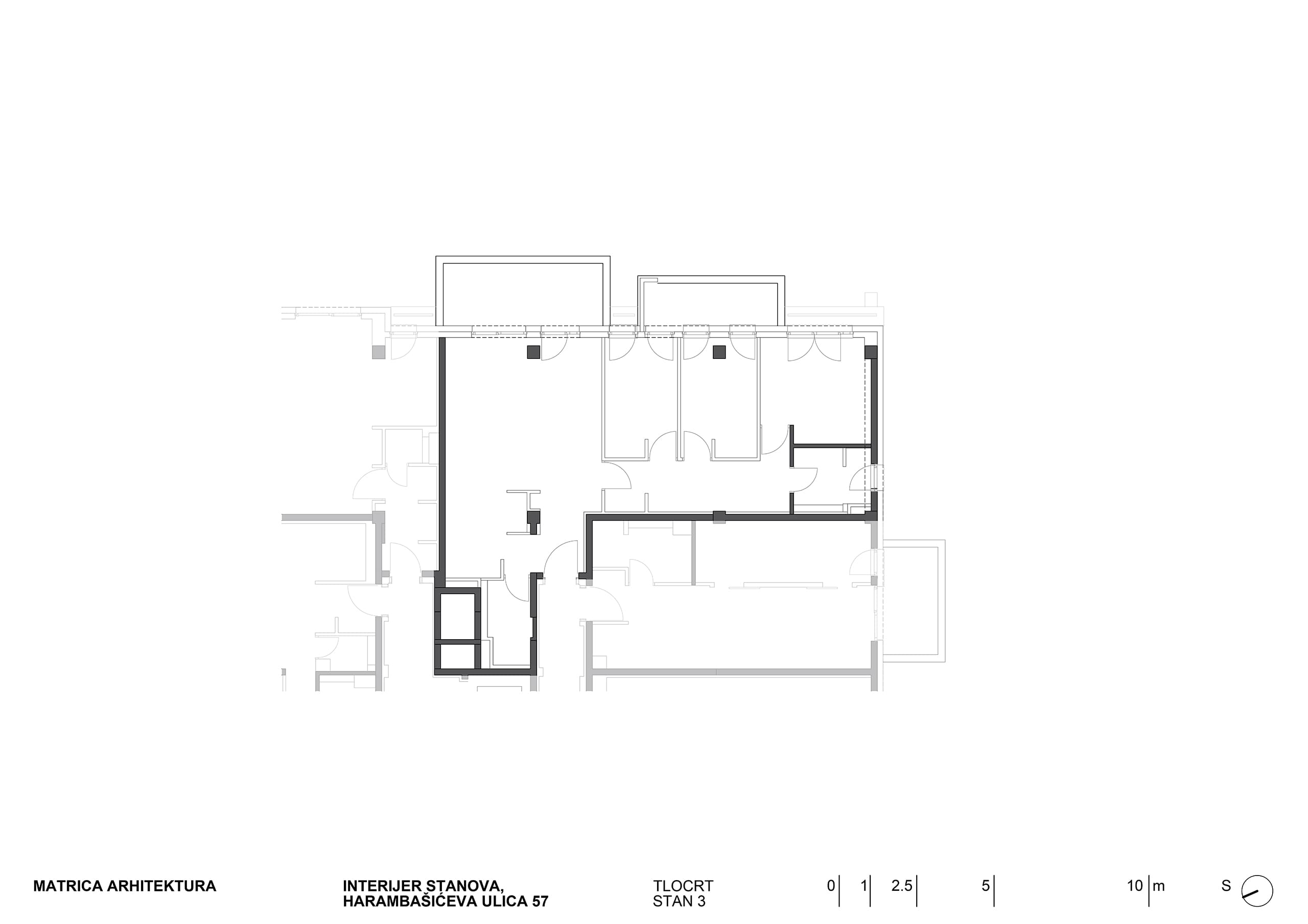
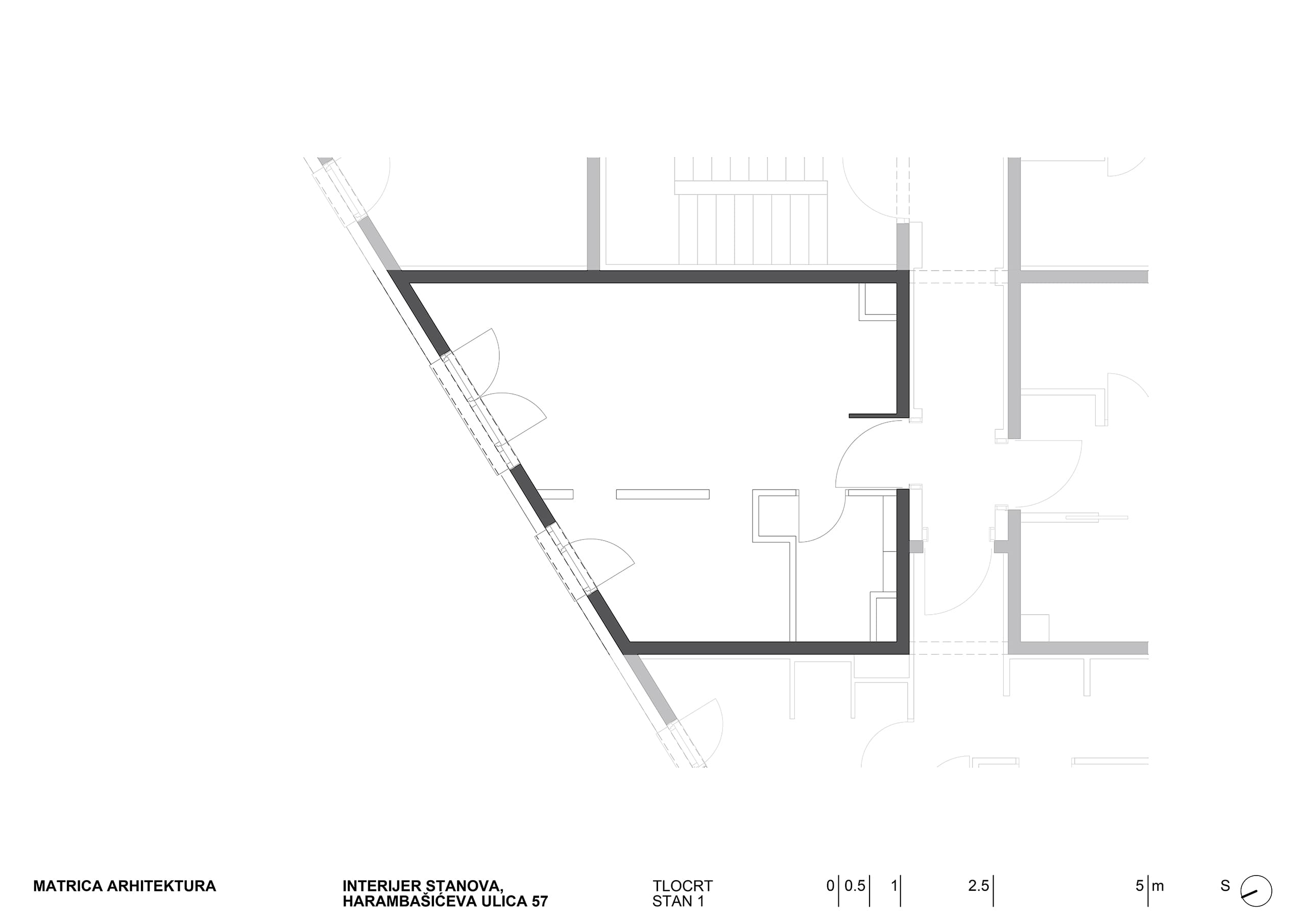
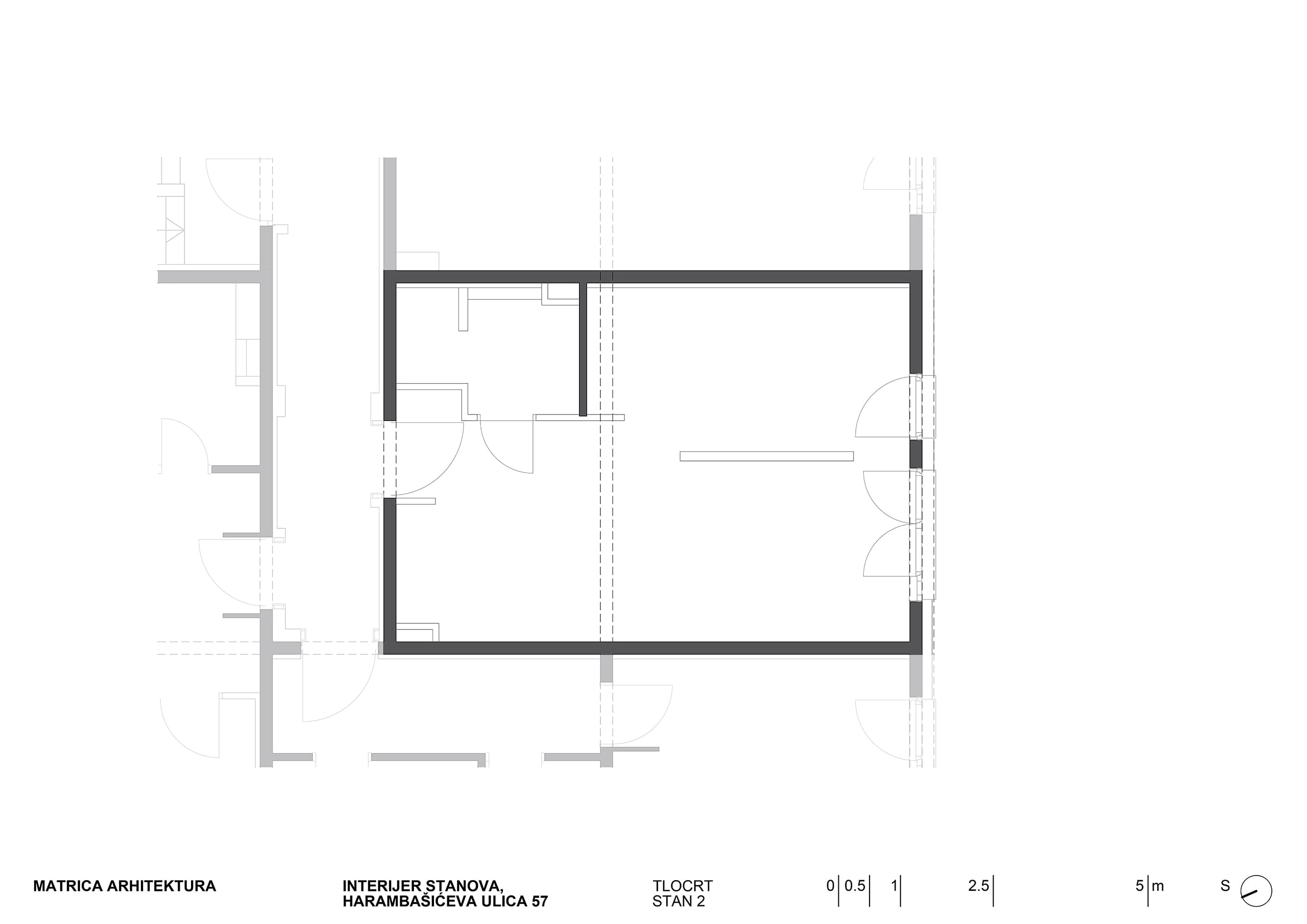
O projektu
Namjera investitora bila je da se za nekoliko različitih stanova različitih dimenzija isprojektira unutarnje uređenje u tri različita upotrebljiva stila da bi se budućim korisnicima moglo lakše dočarati kako bi stan u konačnici mogao izgledati.
- Vrsta posla
- Interijer
- Faze posla
- Idejni projekt interijera






Stilovi korišteni pri razradi unutarnjeg uređenja stanova radno su nazvani: stil studentica, stil mladog bračnog para i stil samca poslovnjaka.