Vila Hortensia
- Klijent
- Jadranka d.d.
- Godina
- 2014
- Lokacija
- Mali Lošinj
- Površina
- 1001 m2
- Status
- Izvedeno
O projektu
Villa Hortensia u uvali Čikat na Malom Lošinju, dovršena 2015. godine, predstavlja luksuznu faksimilnu rekonstrukciju izvorne austrougarske vile iz 1911. godine.
Zgrada je vitka, bijela i elegantna, utopljena u gusti mediteranski vrt. Iako njena originalna arhitektura nije iznikla iz primorskog podneblja, ipak se skladno stapa sa zelenilom i plavetnilom uvale Čikat.
- Vrsta posla
- Faksimilna rekonstrukcija, Dogradnja, Interijer, Uređenje okoliša
- Faze posla
- Arhitektonski snimak postojećeg stanja, Idejni projekt, Glavni projekt, Izvedbeni projekt, Idejni i izvedbeni projekt interijera, Uređenje okoliša, Projektni nadzor




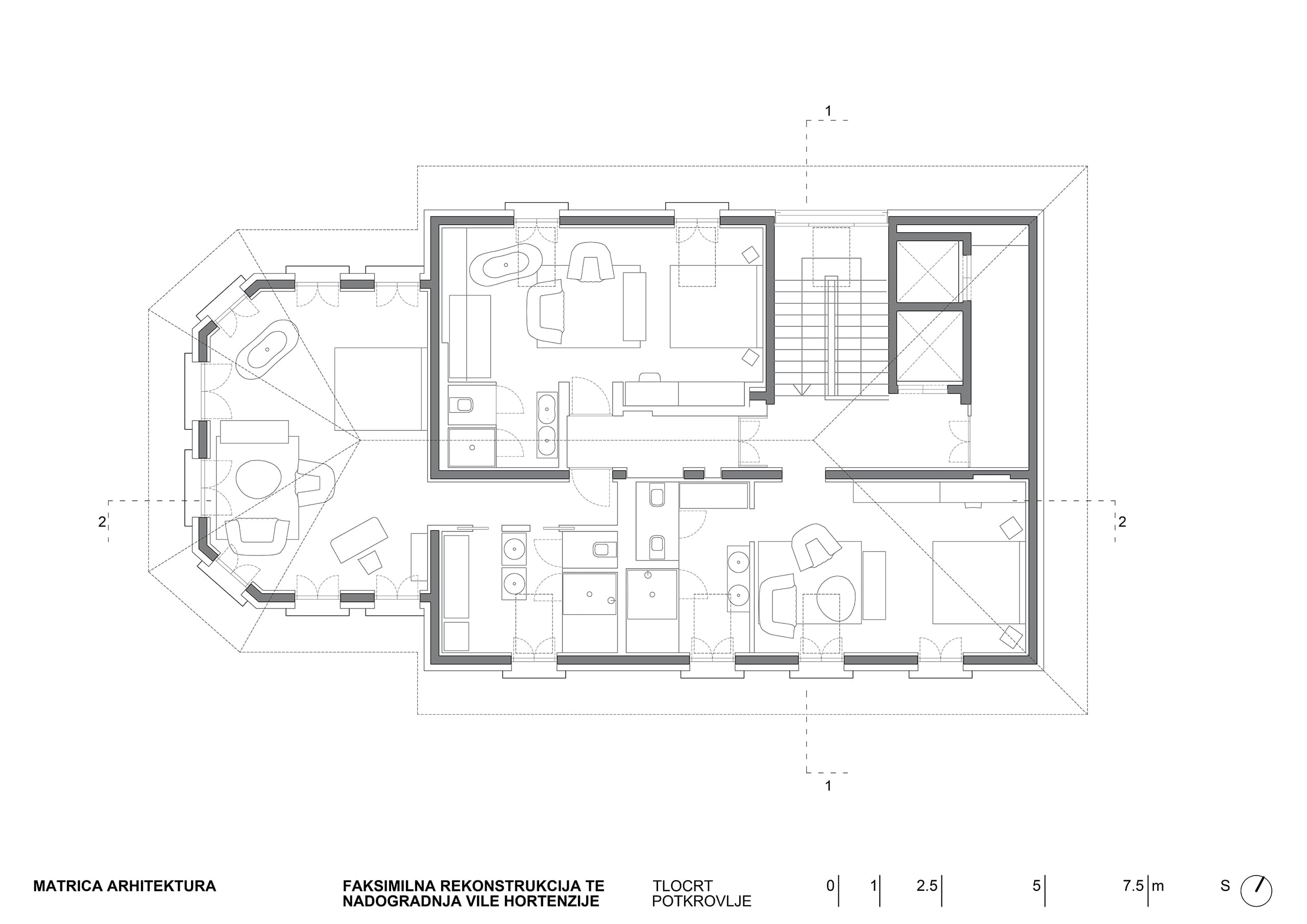
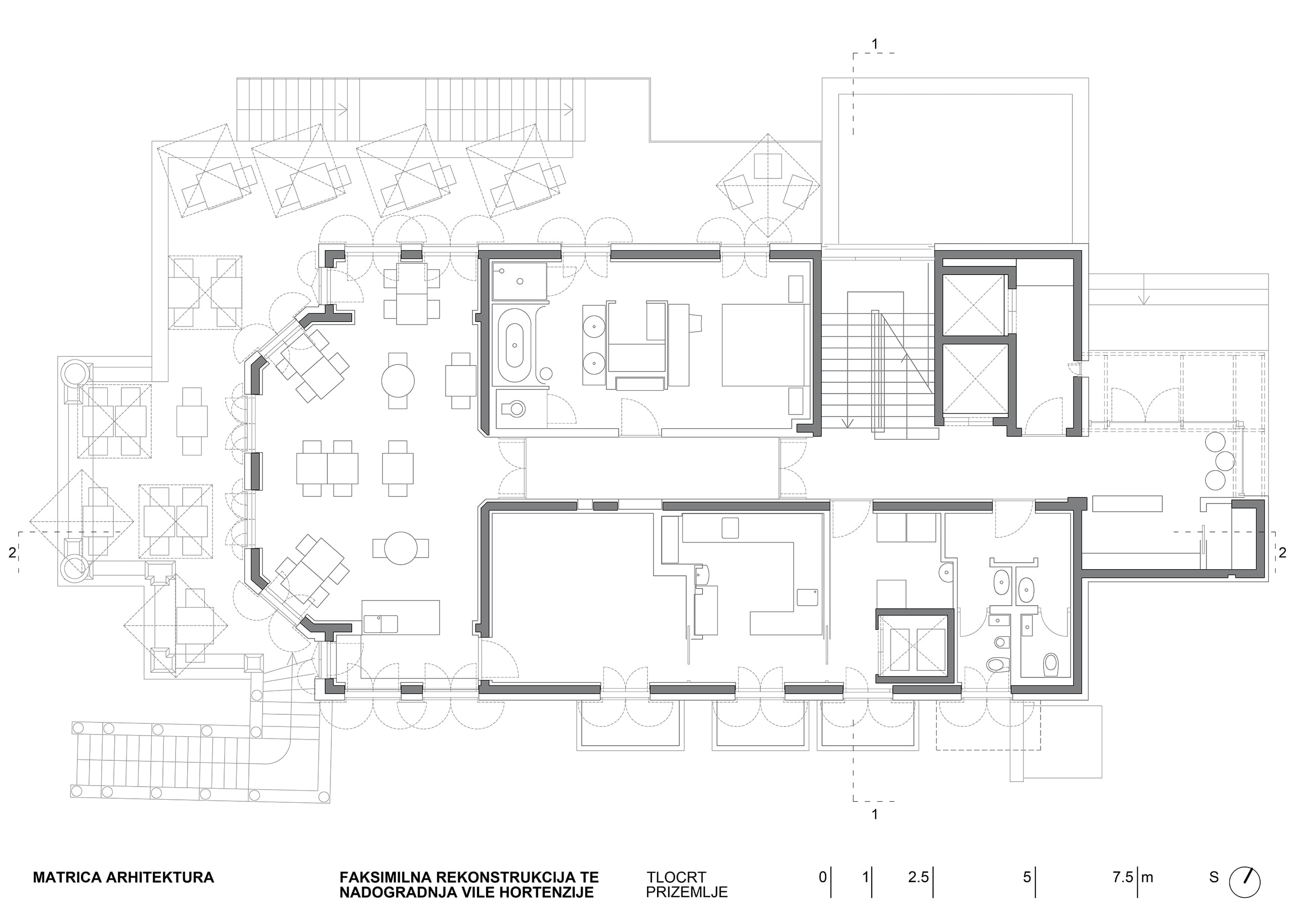
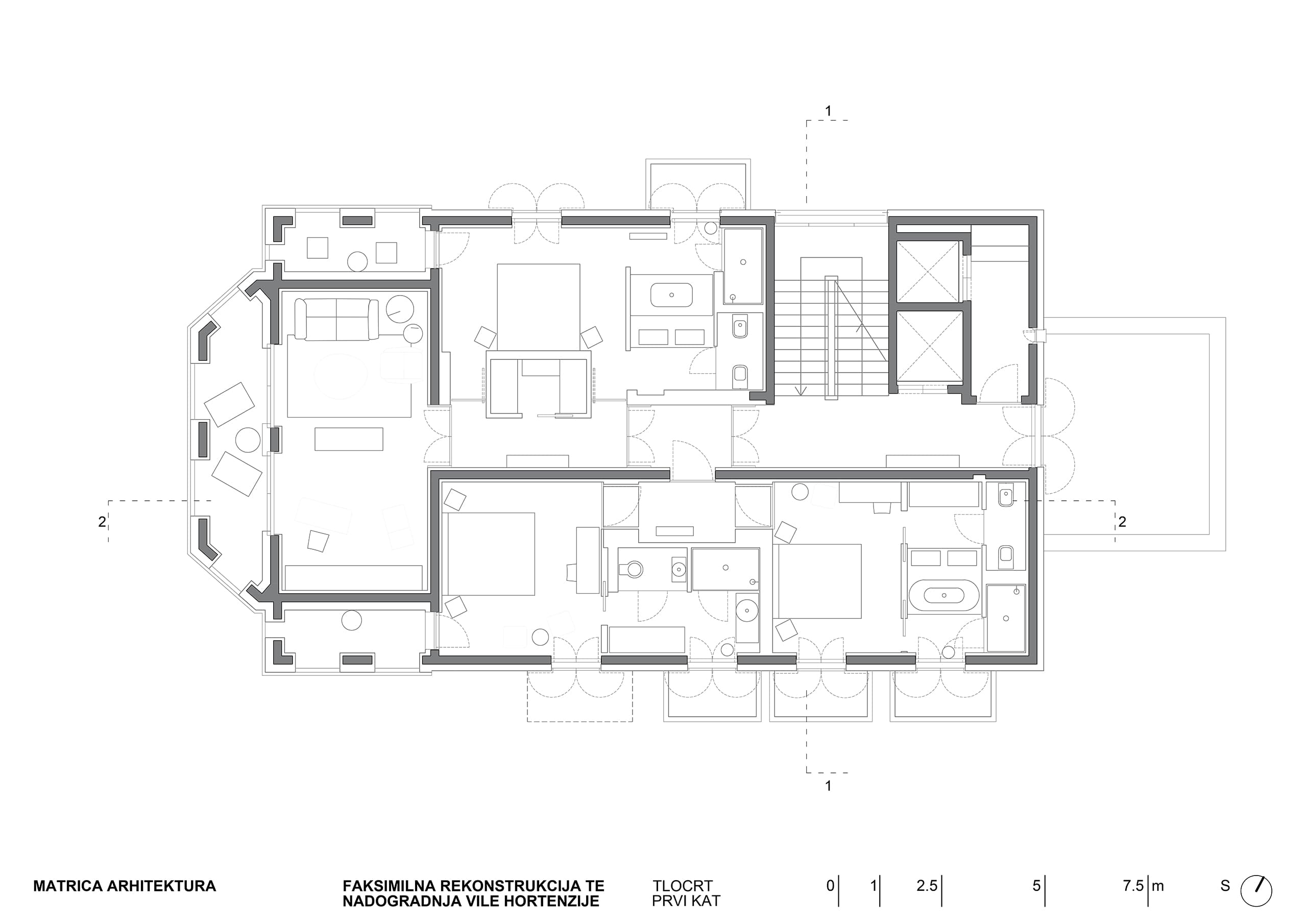
Projekt obuhvaća 1000 m2 vrhunski uređenog interijera i eksterijera. U 7 luksuzno uređenih soba s kupaonicom i terasom s pogledom na more, u lounge prostoru i wellnessu spojeni su povijesni stil s modernim komforom i suvremenim dizajnom. Oko vile se prostire raskošni privatni vrt s potpisom dizajnerice vrtova Nataše Tiške u sklopu kojega se nalazi i bazen s grijanom vodom.

Vila Hortensia elegantna je austro-ugarska ljepotica s početka 20. stoljeća. Nudeći visok stupanj privatnosti zahvaljujući smještaju uz more u okrilju stoljetnih borova, ova vila nakon preuređenja odiše sofisticiranim luksuzom. Tradicionalna arhitektura osvježena je dodirom modernog stila, dizajnerskog namještaja i pomno izabranih detalja.
hrvatska.net